تفاصيل
برج آمال
| المحافظة | الكويت |
| نوع المبني | استثماري - سكني |
| المساحة الكلية | 1,015.89 |
| الرقم الآلي | 95653759 |
| رقم القسيمة | 78 |
| العنوان | الدعية - ضاحية حصة المبارك - ق5 |
| عمر المبني | 2023 |
| عدد الادوار | 12 |
| عدد الشقق | 20 |
| عدد البنت هاوس | 1 |
| نوع المستأجر | سكني عائلات |
| نوع السرداب | استثماري - سكني |
الموقع
• يقع البرج آمال في قلب مشروع حصة مبارك، الدعية، شارع الخليج العربي قطعة رقم 5 قسيمة 78.
• تقع في منطقة سكنية حديثة وراقية في موقع متميز ومنطقة نمط حياة فاخرة.
• يتميز موقع مشروع "عقار آمال" في ضاحية حصة المبارك بموقع استراتيجي في قلب العاصمة ، حيث يبعد حوالي 3 كم عن أبراج الكويت و4 كم تقريباً عن سوق شرق التجاري كما يبعد نحو 5 كم عن مركز مدينة الكويت، مما يجعله قريباً من المناطق التجارية والحيوية. يبعد المشروع حوالي 8 كم عن المطار الدولي، مما يوفر سهولة الوصول للمسافرين. يقع المشروع أيضاً على بعد حوالي 6 كم من المركز العلمي ومارينا مول في السالمية، مما يعزز الوصول للأنشطة الترفيهية والثقافية. كما يقع على بعد حوالي 12 كم من مستشفى مبارك الكبير، و10 كم عن الأفنيوز، أحد أكبر مراكز التسوق في الكويت، مما يضفي ميزة إضافية لموقعه المتميز.
المواصفات
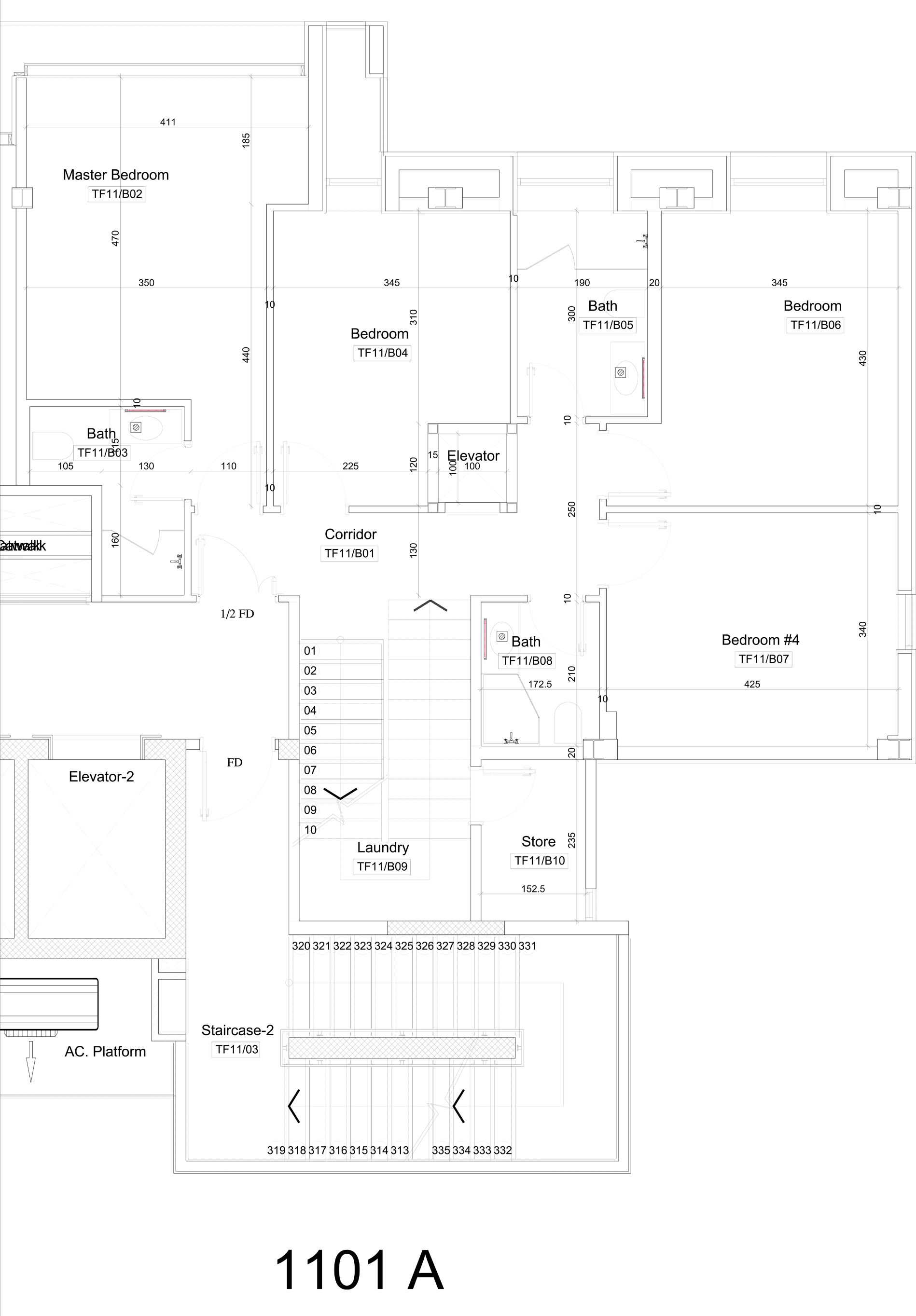
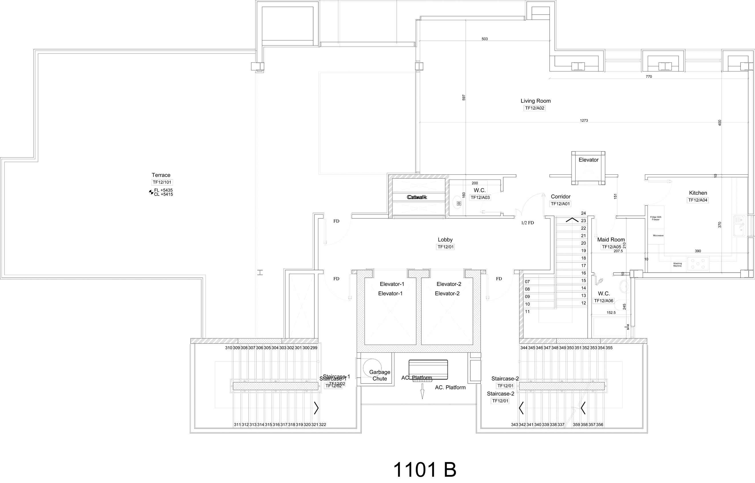
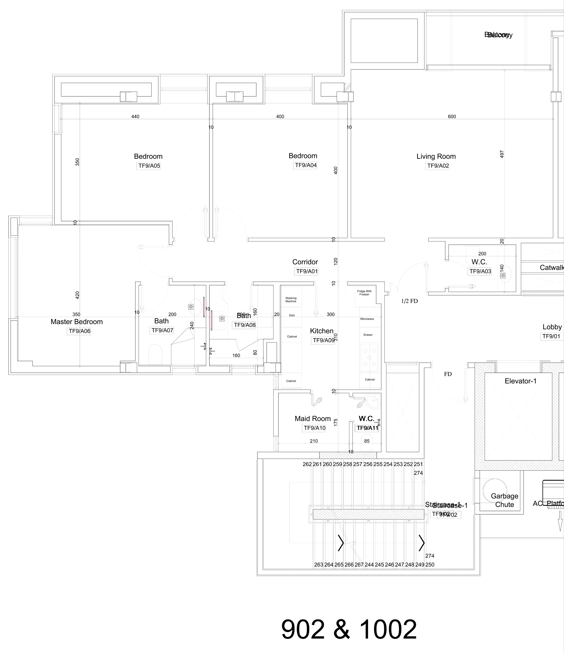
• يتكون البرج من 12 طابق ،كل طابق يتكون من ( 2 وحدة ) من الدور الأول إلى الدور العاشر
• تكون الدور11 و12 من PENTHOUSE
• اجمالي عدد الوحدات السكنية 21 وحدة
• إجمالي 21 وحدة سكنية: (12 وحدة - 2 غرفة نوم) ، ( 8 وحدات - 3 غرف نوم) ، ( بنتهاوس - 4 غرف نوم)
خدمات العقار
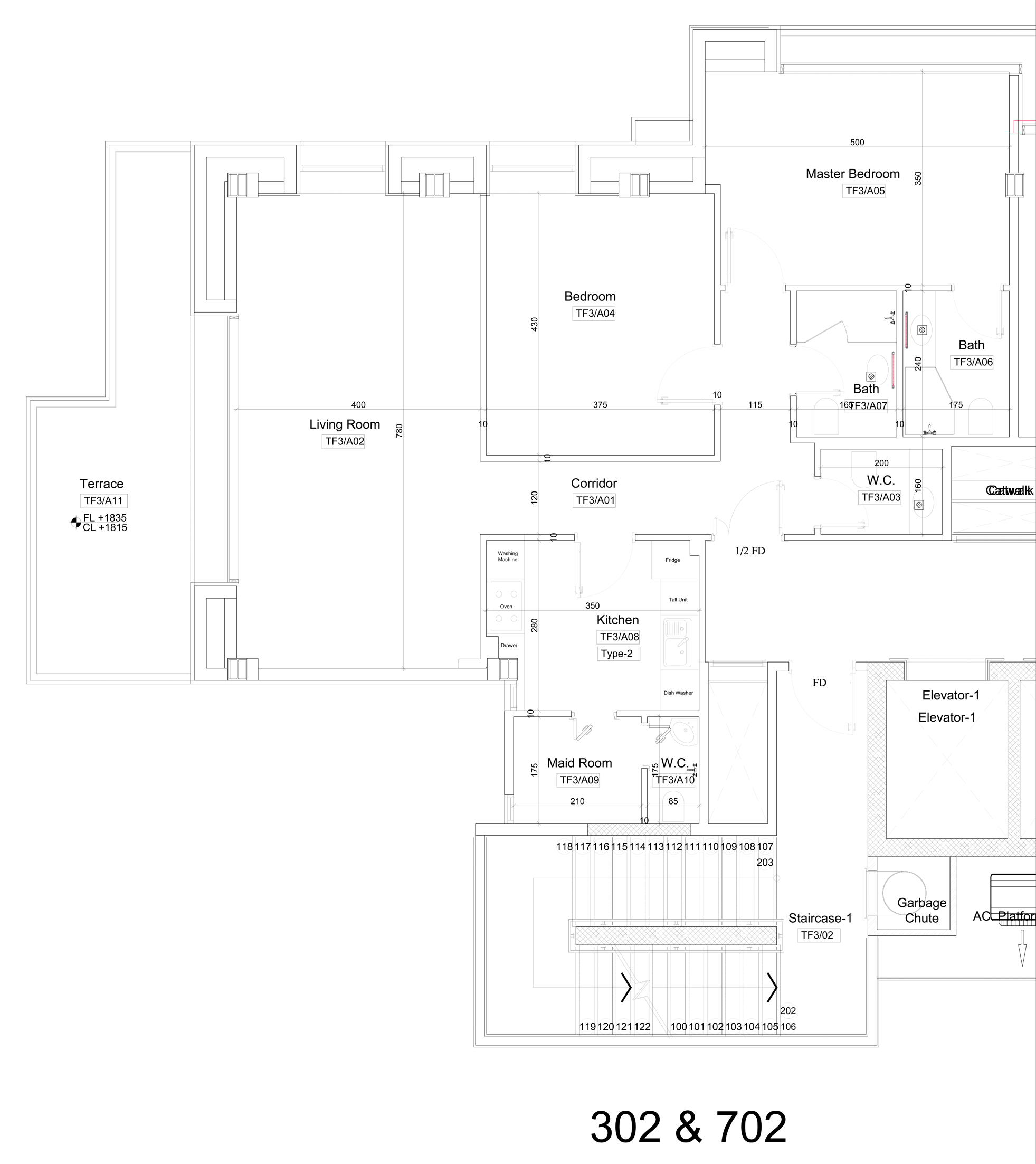
| مكونات | Components | |
| عدد الشقق | 8 | Apartment No. |
| عدد الغرف | 3 | Rooms No. |
| عدد الحمامات | 4 | Bathrooms No. |
| حمام ضيوف | 2*1.4 | Guest Bathroom |
| حمام خادمة | 1.75*1.20 | Maid Bathroom |
| حمام رئيسي | 2*1.2 | Main Bathroom |
| حمام ماستر | 3*1.95 | Master Bathroom |
| حالة الشقة | غير مؤثثة | Apartment Status |
| مساحة الشقة M2 | 1114.5 | Apartment Area M2 |
| غرفة خادمة | 2.5*1.75 | Maid Room |
| مطبخ | 3.1*3 | Kitchin |
| الصالة | 6.15*5 | Living Room |
| بلكونة | يوجد | Balcony |
| غرفة غسيل | لا يوجد | Laundry Room |
| غرفة الماستر | 6*5 | Master Room |
| الغرفة الأولى | 4.4*3.50 | First Room |
| الغرفة الثانية | 4.2*3.50 | Second Room |
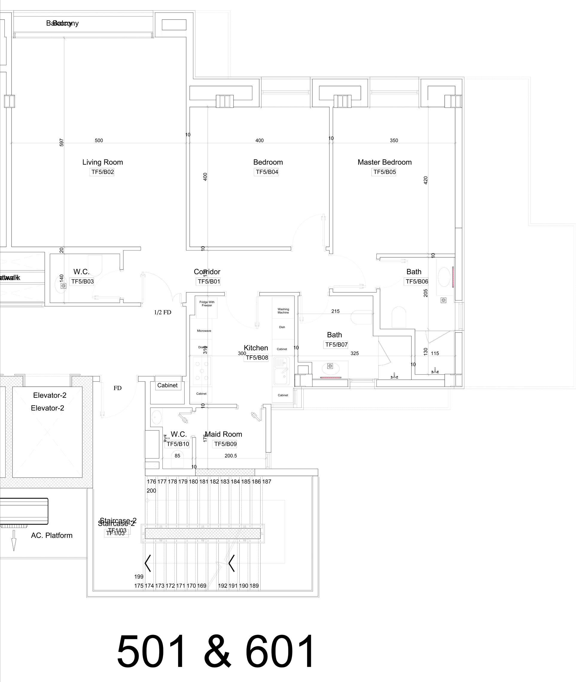
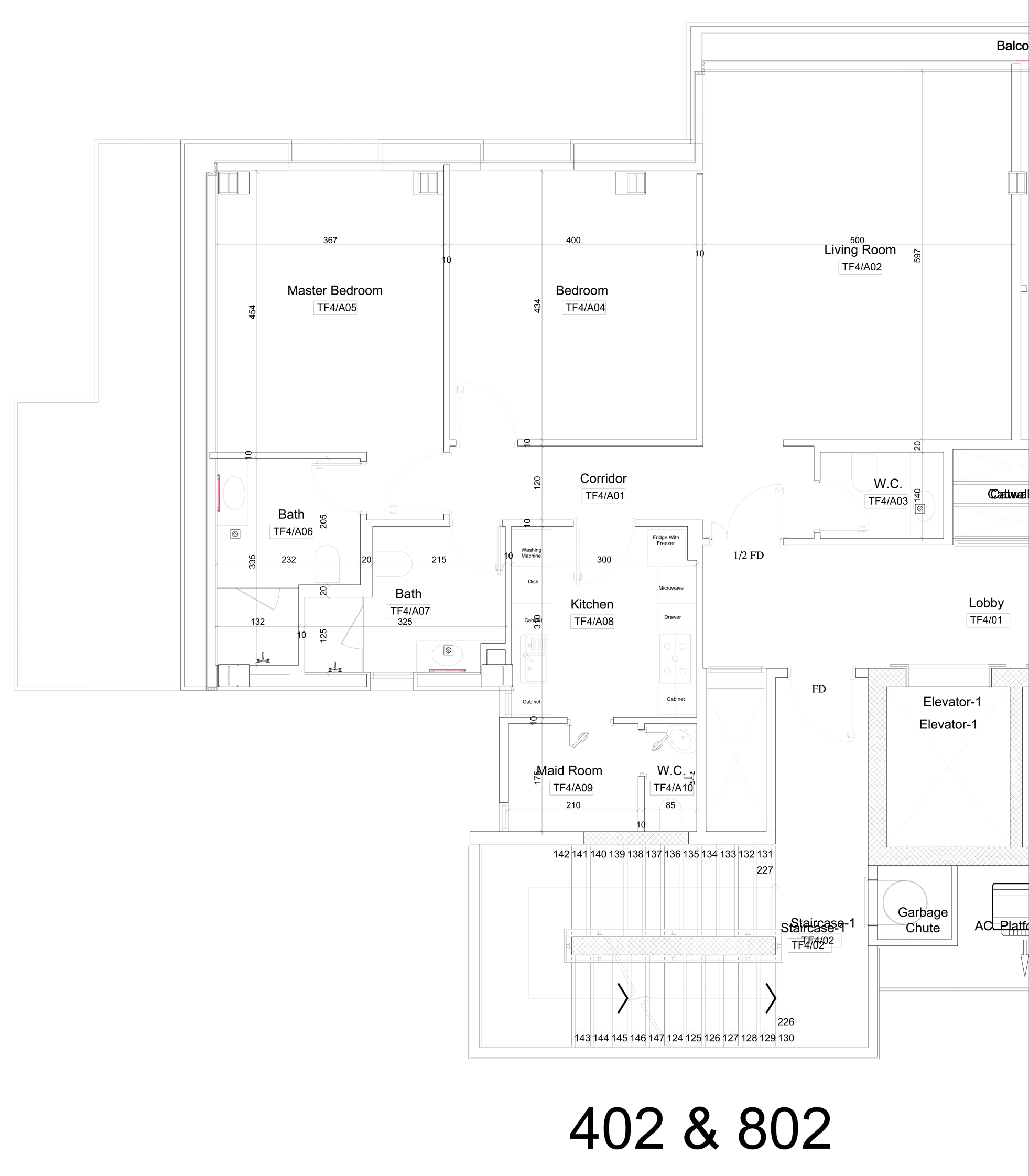
| مكونات | Components | |
| عدد الشقق | 12 | Apartment No. |
| عدد الغرف | 2 | Rooms No. |
| عدد الحمامات | 4 | Bathrooms No. |
| حمام ضيوف | 2*1.4 | Guest Bathroom |
| حمام خادمة | 1.75*.08 | Maid Bathroom |
| حمام رئيسي | 3.95*2.15 | Main Bathroom |
| حمام ماستر | 3.5*2.16 | Master Bathroom |
| حالة الشقة | غير مؤثثة | Apartment Status |
| مساحة الشقة M2 | 114.5 | Apartment Area M2 |
| غرفة خادمة | 2.5*1.75 | Maid Room |
| مطبخ | 3.1*3 | Kitchin |
| الصالة | 6.15*5 | Living Room |
| بلكونة | تراس | Balcony |
| غرفة غسيل | لا يوجد | Laundry Room |
| غرفة الماستر | 4.20*3.5 | Master Room |
| الغرفة الأولى | 4.20*3.5 | First Room |
| مكونات | Components | |
| غرفة الضيوف | 12*4 | Guest Room |
| حمام ضيوف | 2*1.6 | Guest Bathroom |
| مطبخ | 3.9*3.7 | Kitchin |
| غرفة خادمة | 2.7*2.10 | Maid Room |
| حمام خادمة | 2.45*1.50 | Maid Bathroom |
| غرفة غسيل | لا يوجد | Laundry Room |
| مساحة الماستر الأول | 4.70*4.10 | 1ST Master Room Area |
| مساحة الحمام الأول | 2.75*2.35 | 1ST Bathroom Area |
| مساحة الماستر الثاني | 4.30*3.45 | 2nd Master Room Area |
| مساحة الحمام الثاني | 3*1.9 | 2nd Bathroom Area |
| مساحة الغرفة الثالثة | 3.45*3.10 | 3rd Room Area |
| مساحة الغرفة الرابعة | 4.25*3.40 | 4th Room Area |
| مساحة الحمام الغرف 3 و 4 | 2.10*1.73 | 3rd & 4th Bathroom Area |
| عدد البنت هاوس | 1 | Penthouse No. |
| عدد الماستر | 2 | Masters No. |
| حالة الشقة | غير مؤثثة | Apartment Status |
الوحدات الشاغرة
| رقم الطابق | رقم الشقة | عدد الغرف | المبلغ | إجراء |
|---|---|---|---|---|
| 1 | 102 | 3 | 950 دينار كويتي | |
| 2 | 202 | 3 | 950 دينار كويتي | |
| 3 | 301 | 2 | 1000 دينار كويتي | |
| 4 | 401 | 2 | 950 دينار كويتي | |
| 5 | 502 | 3 | 1100 دينار كويتي | |
| 6 | 601 | 3 | 950 دينار كويتي | |
| 6 | 602 | 3 | 1100 دينار كويتي | |
| 8 | 801 | 2 | 1100 دينار كويتي | |
| 8 | 802 | 2 | 1100 دينار كويتي | |
| 9 | 901 | 2 | 950 دينار كويتي | |
| 10 | 1001 | 2 | 1000 دينار كويتي | |
| 10 | 1001 | 2 | 1000 دينار كويتي | |
| 10 | 1002 | 3 | 1200 دينار كويتي |
إطلالة بحرية
شرفة/تراس
تكييف الهواء
تدفئة مركزية
مصعد
حمام سباحة
مركز لياقة بدنية
مراقبة بالكاميرات
جاكوزي
نظام الانتركم
لوبي العقار
مواقف سيارات داخلية